Onze website maakt gebruik van cookies. Lees meer in onze cookie verklaring.
€ 3.500,-
Stolwijkstraat, Amsterdam
Appartement
 
                            Omschrijving
Per 1 juni 2025 beschikbaar, 4-kamer appartement in Amsterdam.
Licht en stijlvol wonen met royaal dakterras in Amsterdam-Zuid
In de geliefde Hoofddorppleinbuurt vind je dit goed ingedeelde en stijlvolle 4-
kamerappartement van circa 100 m². Met een royale doorzonwoonkamer, drie
slaapkamers, een balkon én een zonnig dakterras is dit een unieke plek om thuis te komen.
De woning is volledig gestoffeerd en gemeubileerd – ideaal voor expats of een
stel/gezin dat comfortabel en zorgeloos wil wonen op een rustige, maar centrale locatie in Amsterdam.
Indeling
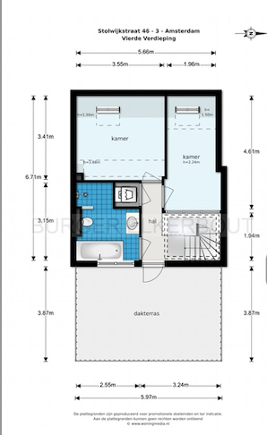
Het appartement bevindt zich op de derde (en bovenste) verdieping van het pand. Bij binnenkomst kom je in een lichte hal die toegang geeft tot alle vertrekken.
De ruime doorzonwoonkamer met open keuken vormt het hart van de woning, een fijne plek om te ontspannen of gasten te ontvangen. De keuken is modern en voorzien van alle benodigde inbouwapparatuur.
Aan de rustige achterzijde ligt een slaapkamer met toegang tot het balkon. De
tweede en derde slaapkamer bevinden zich op de bovenliggende verdieping aan de voorzijde van de woning.
De luxe badkamer is voorzien van een inloopdouche, ligbad, wastafelmeubel en een tweede toilet. Daarnaast is er een separaat gastentoilet, een aparte ruimte met wasmachine/droger en een praktische interne berging.
Via een interne trap bereik je het privé dakterras – een absoluut hoogtepunt van deze woning, met een prachtig uitzicht over de stad.
Locatie:
De Stolwijkstraat is een rustige straat met een dorps karakter, midden in de stad. Op loopafstand vind je supermarkten, koffietentjes, gezellige horeca en het Vondelpark.
Ook de bereikbaarheid is uitstekend, met diverse tram- en busverbindingen en de Ring A10 op korte afstand.
Ben je op zoek naar een comfortabele, stijlvolle woning mét buitenruimte in een fijne buurt? Neem dan snel contact op voor een bezichtiging!
Kenmerken:
- Huurovereenkomst op basis van de Diplomatenclausule
- Licht en ruim appartement met moderne open keuken
- Drie volwaardige slaapkamers
- Zonnig privé dakterras
- Extra balkon aan de achterzijde
- Luxe badkamer met inloopdouche, ligbad en tweede toilet
- Separaat gastentoilet en aparte wasruimte
- Volledig gemeubileerd en gestoffeerd
- Beschikbaar per 1 juni 2025
- Let op: niet geschikt voor woningdelers
- Gelegen nabij Vondelpark, Rembrandtpark, winkels, horeca en openbaar
 vervoer
- Huurprijs exclusief gas/elektra, water, internet en tv
Kenmerken
- 
                                Adres Stolwijkstraat, Amsterdam 
- 
                                Wijk Hoofddorppleinbuurt 
- 
                                Soort woning Appartement 
- 
                                Bouwjaar 1928 
- 
                                Woonoppervlakte Circa 100 m² 
- 
                                Balkon 1 
- 
                                Kamers 4 
- 
                                Slaapkamers 3 
- 
                                Badkamers 1 
- 
                                Ligging In woonwijk 
- 
                                Inkomenseis € 10500 
- 
                                Borgsom € 7000 
- 
                                Parkeergelegenheid Betaald parkeren, Parkeervergunningen 
- 
                                Huurperiode Tijdelijk 
- 
                                Energielabel C 
Voorzieningen
- 
                                Huisdieren: Nee 
- 
                                Gemeubileerd 
- 
                                Balkon: 1 
- 
                                Roken toegestaan: Nee 
Vergelijkbaar op basis van prijs
Klantbeoordelingen
Waarom kiest u voor Relo Makelaars? Persoonlijke, transparante, no-nonsense en flexibele samenwerking.
Lees alle referenties 
            Kennismaken?
Onze bemiddelaars zijn gespecialiseerd, vakkundig en klantgericht op bemiddeling tussen huurders en verhuurders in de particuliere woningmarkt.
Meer over ons 
                 
                                             
                                             
                     
                                     
                                             
                                             
                                 
                                 
                                 
                                 
                                 
                                 
                                 
                                 
                                 
                                 
                                 
                                 
                                 
                                 
                                 
                                 
                                 
                                 
                                 
                                 
                                 
                                 
                                 
                                 
                                 
                                 
                                 
                                 
                                 
                                 
                                 
                                 
                                 
                                 
                                 
                                 
                                 
                                 
                                 
                                 
                                 
                                 
                                 
                                 
                                 
                                 
                                 
                                 
                                 
                                 
                                 
                                 
                                 
                                 
                                 
                                 
                                 
                                 
                                 
                                 
             
             
             
             
                         
                         
                        